Cena projektu:
Holodom: 122 800€
Na kľúč: 148 700€
Projektová dokumentácia

Projektovú dokumentáciu vám zabezpečíme vrátane všetkých potrebných dokladov pre vybavenie stavebného povolenia. Naša služba zahŕňa vypracovanie kompletného projektu vrátane architektonických návrhov, technickej dokumentácie a statických výpočtov. Okrem toho zabezpečíme všetky potrebné administratívne dokumenty, ktoré sú nevyhnutné pre hladký priebeh schvaľovania na stavebnom úrade. Týmto spôsobom vám odpadne starosť s byrokratickými procesmi a celý projekt bude pripravený na realizáciu v súlade s platnými stavebnými predpismi.
- projekt zdravotechniky (rozvody vody a odpadu)
- projekt kúrenia (rozvody kúrenia)
- projekt prípojky vody/studňa
- projekt prípojky kanalizácie/septik
- projekt elektroinštalácie + bleskozvodu
- projekt tepelnotechnického posúdenia
- projekt protipožiarnej bezpečnosti
- projekt architektúry (osadenie objektu, inžinierske siete, základy, prízemie, strecha, rezy, pohľady, sprievodná správa, technická správa)
- projekt statiky (tvar a výstuž základov a dosky, nosné steny prízemia, krov, statický výpočet, autorizačná pečiatka)
Základne parametre stavby:

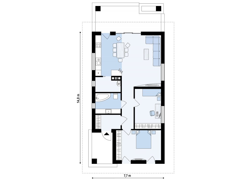
- Pôdorysné rozmery (čistá vnútorná plocha): 14 x 7,7 m
- Zastavaná plocha: 107,8 m²
- Úžitková plocha (čistá podlahová plocha všetkých miestností): 86,53 m²
- Počet podlaží: 1 podlažný
- Počet izieb: 2 izby + obývačka
- Počet miestností (vrátane kúpeľní, technickej miestnosti a pod.): 6 miestností
- Počet kúpeľní a WC: 1 kúpeľňa
- Typ strechy: valbová
- Svetlá výška miestností (výška stropu): 2,4 m
- Obvodové steny: KVH hranoly 60 × 140 mm + zateplenie 150 mm polystyrén (Hrúbka obvodovej steny spolu - 35,75cm)
- Vnútorne steny: KVH hranoly 60 x 100 mm + sadrokartón (Hrúbka obvodovej steny spolu - 17,5cm)
- Strešná izolácia: 160 mm minerálna vata krokvy + 100mm dodatočná izolácia priamo na strop
- Druh okien: Plastové trojsklo od spoločnosti Slovaktual
- Vykurovanie: Infračervené podlahové kúrenie poprípade iné podľa voľby zákazníka ( pri stavbe na kľúč, poprípade iné kúrenie viď nižšie)
Stavba do štádia HOLODOM:

- Projektová dokumentácia – Kompletné podklady pre realizáciu stavby.
- Betónová platňa – Stabilný a odolný základ v cene stavby, zabezpečujúci dlhú životnosť a pevnosť konštrukcie. Vrátane výkopu.
- Zateplená podlaha: S hrúbkou 12 cm poskytuje výbornú izoláciu a energetickú úsporu. Vďaka hrubému izolačnému materiálu je zaistené komfortné bývanie aj počas chladných mesiacov.
- Konštrukcia z KVH hranolov: Základná konštrukcia stien je vytvorená z vysoko kvalitných KVH hranolov s rozmermi 60x140 mm, čo zabezpečuje stabilitu a dlhú životnosť stavby.
- Izolácia obvodových priečok: Hrúbka izolácie 140 mm zabezpečuje výbornú tepelnú a zvukovú izoláciu, čím sa výrazne znižujú náklady na vykurovanie a udržuje sa príjemná vnútorná klíma.
- Vonkajšie opláštenie: OSB dosky s hrúbkou 15 mm poskytujú základnú ochranu konštrukcie pred vonkajšími vplyvmi a stabilizujú celú stavbu.
- Vonkajšia izolácia – Steny sú dodatočne zateplené 150 mm polystyrénom, čo výrazne zlepšuje energetickú efektivitu stavby.
- Povrchová úprava: Vonkajší povrch môže byť dokončený omietkou vo farbe podľa výberu zákazníka. Navyše, je tu možnosť kombinácie omietky s drevom alebo kameňom, čo pridáva estetický vzhľad, pričom všetko sa dá prispôsobiť individuálnym potrebám zákazníka.
- Konštrukcia vnútorných priečok: Vnútorné priečky sú z KVH hranolov 60x100 mm s izoláciou 100 mm minerálnej vaty, čo zaručuje vynikajúce akustické vlastnosti a tepelnú pohodu v miestnostiach.
- Opláštenie sadrokartónom: Vnútorné steny sú opláštené modrým sadrokartónom (Rigips), ktorý je známy pre svoje zvýšené odolnosti proti vlhkosti a požiaru. Tento materiál je ideálny pre priestory s vyššou vlhkosťou, ako sú kúpeľne, a zlepšuje aj protipožiarne vlastnosti stavby.
- Vnútorný náter: Steny budú ošetrené a natreté farbou podľa výberu, čím sa dosiahne estetický vzhľad interiéru.
- Krokvy: Hlavná nosná časť strechy je vytvorená z krokiev s rozmermi 60x160 mm, čo zaručuje pevnosť a stabilitu celej strešnej konštrukcie.
- Zateplenie strechy – Strecha je izolovaná 160 mm minerálnou vatou + dodatková izolácia 100mm na strope, čím sa minimalizujú tepelné straty a zvyšuje sa komfort bývania.
- Krytina strechy: Strecha môže byť pokrytá podľa preferencií zákazníka - buď plech, šindeľ alebo škridla, čo zabezpečuje vysokú odolnosť voči poveternostným podmienkam.
- Odkvapy a zvody: Kompletný systém odvodnenia strechy je zabezpečený kvalitnými odkvapmi a zvodmi, ktoré vedú vodu až po zem.
- Plastové okná trojsklo – Kvalitné trojsklá s vynikajúcimi tepelnoizolačnými vlastnosťami zabezpečujú nízke tepelné straty a zlepšujú akustický komfort v interiéri.
- Vstupné dvere: Bezpečnostné vstupné dvere vo farbe a prevedeniu podľa výberu.
- Rozvody inžinierskych sietí – V cene sú zahrnuté kompletné rozvody elektriny, vody a kanalizácie, pripravené na pripojenie k verejným sieťam.
- Terasa 15,5 m²: Súčasťou projektu je aj terasa spojená s objektom. Možnosť stavby aj bez terasy.
Stavba do štádia NA KĽÚČ:

- Plávajúca podlaha: Elegantné a odolné podlahy vo všetkých miestnostiach, ktoré zvyšujú komfort bývania.
- Dlažba v kúpeľni: Praktická a estetická dlažba vhodná pre vlhké prostredie, ktorá zároveň ľahko udržiava čistotu.
- Sanitárne vybavenie: Kompletné vybavenie kúpeľne vrátane sprchového kúta, umývadla a toalety.
- Zapojenie elektriky a vody: Kompletné zapojenie všetkých inštalácií vrátane testovania ich funkčnosti.
- Obložkové zárubne s dverami: Kvalitné interiérové dvere s obložkovými zárubňami dodávajú domu štýlový vzhľad a zvyšujú celkovú kvalitu bývania.
- Vykurovanie: Výber alebo kombinácia možnosti vykurovania.
Vykurovanie:

Vykurovanie tohto drevodomu je flexibilné a môže byť prispôsobené potrebám a preferenciám zákazníka. K dispozícii sú viaceré možnosti vykurovania:
Infra podlahové kúrenie:
Tento moderný a energeticky úsporný systém vykurovania poskytuje rovnomerné rozloženie tepla po celom dome priamo z podlahy. Infra podlahové kúrenie je ideálne pre tých, ktorí chcú zvýšiť komfort bývania, pretože tento systém nevytvára prúdenie vzduchu a nevíri prach.
Centrálne vykurovanie na tuhé palivo:
Táto možnosť zahŕňa vykurovanie prostredníctvom kotla na tuhé palivo alebo plyn a radiátorov poprípade podlahové kúrenie. Ide o spoľahlivé a cenovo efektívne riešenie pre tých, ktorí preferujú tradičné spôsoby vykurovania a chcú využiť obnoviteľné zdroje energie ako drevo alebo brikety.
Krbová vložka v obývačke:
Krb je nielen estetickým, ale aj funkčným doplnkom vášho domova. Krbová vložka poskytuje príjemné teplo a útulnú atmosféru, pričom je schopná vykurovať obývaciu izbu a okolitý priestor. Je to skvelá možnosť pre milovníkov tradičného vykurovania a atmosféry, ktorú len krb môže vytvoriť.
Tepelné čerpadlo:
Ide o ekologicky šetrnú a energeticky efektívnu možnosť vykurovania, ktorá využíva obnoviteľné zdroje energie z okolia (vzduch, voda, zem) na vykurovanie alebo chladenie domu. Tepelné čerpadlo ponúka vysokú účinnosť a nízke prevádzkové náklady, čím znižuje závislosť na tradičných zdrojoch energie a poskytuje stabilné vykurovanie počas celého roka.
Každá z týchto možností môže byť prispôsobená na mieru podľa konkrétnych požiadaviek zákazníka, a je možné ich navzájom kombinovať, aby sa dosiahla maximálna efektivita a komfort vykurovania.
Súhrn stavby:
Obvodové steny konštrukcia (Z vonku - dnu)

- Omietka: Povrchová úprava podľa výberu zákazníka.
- Sieťka s lepidlom: Pre zvýšenie pevnosti omietky.
- Izolácia: 150 mm polystyrén alebo minerálna vata s možnosťou zväčšenia hrúbky podľa potrieb zákazníka.
- OSB doska 15 mm: Slúži ako nosná vrstva pre izoláciu.
- Konštrukčné KVH hranoly 60x140 mm: Nosný rám obvodových stien.
- Izolácia medzi hranolmi 140 mm: Dodatočná izolácia pre zvýšenie tepelnej účinnosti.
- Hliníková fólia: Parozábrana pre ochranu pred vlhkosťou.
- Diletančný hranol 25 mm: Tento hranol zabezpečuje dilatáciu medzi parozábranou a sadrokartónom, čo zvyšuje celkovú stabilitu a odolnosť steny.
- OSB doska 15mm: Spevnenie sadrokartónu ako aj samotnej stavby.
- Sadrokartón: Vnútorné opláštenie pre hladký povrch a dodatočnú protipožiarnu ochranu.
- Náter: V prípade realizácie na kľúč bude povrch stien dokončený kvalitným náterom podľa výberu zákazníka.
Vnútorné priečky
_cleanup.png)
- Sadrokartón: Opláštenie priečok na oboch stranách.
- Parotesná fólia: Parozábrana.
- Diletančný hranol 25 mm: Tento hranol zabezpečuje dilatáciu medzi parozábranou a sadrokartónom.
- KVH hranoly 60x100 mm: Nosná konštrukcia vnútorných priečok.
- Izolácia 100 mm vata: Pre tepelnú a zvukovú izoláciu medzi miestnosťami.
- Parotesná fólia: Druhá vrstva parozábrany.
- Diletančný hranol 25 mm: Tento hranol zabezpečuje dilatáciu medzi parozábranou a sadrokartónom.
- Sadrokartón: Dokončenie priečky.
Strop stavby

- Konštrukcia pre debnenie stropu: Nosná štruktúra.
- Izolácia 100 mm: Dodatočná izolácia k streche.
- Parotesná fólia: Parozábrana.
- Diletančný hranol 25 mm: Tento hranol zabezpečuje dilatáciu medzi parozábranou a sadrokartónom.
- Sadrokartón: Opláštenie stropu.
Strecha

- Krokvy KVH hranoly 60x160 mm: Hlavná konštrukcia strechy.
- Izolácia 160 mm vata: Tepelná izolácia strechy.
- Paropriepustná fólia: Umožňuje dýchanie konštrukcie.
- Kontralaty: Ventilačná medzera.
- Debnenie alebo latovanie: Základ pre krytinu.
- Krytina (plech alebo škridla): Výber podľa preferencie zákazníka.
- Odkvapová rína a zaveterné lišty: Kompletný odvodňovací systém.
Vybavenie stavby

- Elektroinštalácia: Štádium Holodom - rozvody, v štádiu Na Kľúč - so zapojením
- Svietidlá, zásuvky a vypínače: Na Kľúč - so zapojením
- Odpad WC a kúpeľňa: Štádium Holodom - rozvody, v štádiu Na Kľúč - so zapojením
- Prívod vody: Štádium Holodom - rozvody, v štádiu Na Kľúč - so zapojením
- Plastové okná trojsklo: Osadené v štádiu Holodom od spoločnosti Slovaktual
- Vstupné dvere bezpečnostné: Osadené v štádiu Holodom
- Kúrenie: Osadené v štádiu Na kľúč, v prípade kúrenia na tuhé palivo - komín osadený v štádiu Holodom (Príplatkové osadenie v danej verzií)
- Vnútorný náter: Vo verzií Holodom
- Vnútorné dvere: Vo verzií Na Kľúč
- Sanita: Vo verzií Na Kľúč
- Dlažba v kúpelni / WC: Vo verzií Na Kľúč